Kurz- oder langfristige Einmietung in Floridsdorf

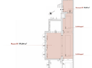
Das Kulturankerzentrum namens "KulturSchlinger" des RED CARPET ART AWARD bietet in der ehemaligen Bücherei im Schlingerhof einen 280 m² großen Kulturraum, dessen Programm von sowohl von den dort schaffenden KünstlerInnen als auch externen Vereinen, Institutionen, Interessent:innen mitgestaltet werden kann. Der Hauptraum (175m²) steht zur temporären Miete zur Verfügung und ist während der Einmietung von 9:00-22:00Uhr nutzbar. Mögliche Formate - Ausstellungen - Performances/Theateraufführungen - Proben - Training - Workshop - Gruppentreffen - Lesungen - Seminare - Vorträge - Tagungen - Konzerte/Gigs von Bands - Film-/Videodreh - Castings - Firmenfeiern Der Raum befindet sich ganz in der Nähe (10min zu Fuß) vom Floridsdorfer Bahnhof und gegenüber von der Straßenbahn-Station „Floridsdorfer Markt“. Hier befindet sich der offizielle Eingang : https://maps.app.goo.gl/p1DJ4MuKFQhVhGHv8
Gallery Foto Gallery Foto Gallery Foto Gallery Foto Gallery Foto Gallery Foto Gallery Foto Gallery Foto Gallery Foto Gallery Foto Gallery Foto
Ausstattung
  • 12 tische
  • 42 sessel
  • 2 sofas
  • 1 bar
  • 2 mistkübel
  • 1 regal hinter der bar
  • 45 unterschiedliche gläser
  • 5 karaffen
  • wlan
  • ausleuchtung der wände
  • bilderschienensysteme
  • natürliches licht
  • 2 lichtkuppel
  • 2 teppiche
  • wc
Mein idealer Raumpartner
Gesucht werden Interessent*innen, welche einen Raum für eine kurz- oder langfrsitige Einmietung in Floridsdorf suchen.
Kurz- oder langfristige Einmietung in Floridsdorf
Über mich
Das Kulturankerzentrum Schlingermarkt des RED CARPET ART AWARD bietet in der ehemaligen Bücherei im Schlingerhof einen 280 m² großen Kulturraum, dessen Programm von sowohl von den dort schaffenden KünstlerInnen als auch externen Vereinen, Institutionen, Interessent:innen mitgestaltet werden kann.
Kontakt-Infos
Frage / Kommentar zum Raum
Sonja Browne
So, 26. Oktober 2025, 10:36
Hallo, Ich bin Sonja, Leiterin des diversen Tanzensembles danse brute. Wir suchen ab Februar 2025 einen Proberaum für dienstags, 15:30-17:00 Uhr. Barrierefrei müsste er sein...ist das bei Ihnen so? Wieviel wùrde das kosten, oder könnten wir gar in Naturalien (Tanzkurs, putzen, Mitarbeit) bezahlen? Bitte lassen Sie mich wissen, Danke, Gute Grüße, Sonja
Ältere Kommentare zeigen
Norbert Kuba
So, 31. August 2025, 12:55
Sehr geehrte Damen und Herren, kann man den großen Raum für fünf oder sechs Tage am Stück mieten? Mit freundlichen Grüßen N. Kuba +4369919228140
Ältere Kommentare zeigen
Martina Holub
Di, 18. März 2025, 15:52
Hallo! Ich wollte mich erkundigen, ob wir euren Raum für unsere Kindertanzstunden mieten könnten? Ab Sept. 25 an einem Wochentag (Mo-Do/Fr) im Zeitraum 15.00-17.00/17.30 Uhr wäre ideal! Wäre das möglich? Würde mich sehr freuen :)! Liebe Grüße Martina Holub 06644419999 www.kreadance.com
Ältere Kommentare zeigen
Martina  Groer
Di, 11. Februar 2025, 11:37
Liebe Inga, wir planen zu zweit ein Astro-Shiatsu-Event zum Kennenlernen der Disziplinen und hätten Interesse, die Location für 1 Samstag mal zu mieten. (Astrologischer Vortrag, Shiatsu-Kurzbehandlungen und astrologische Kurzberatungen, wie wir dies in Wien und Milano schon gemacht haben. Deine Location in 1210 wäre ideal für uns. Danke für dein Feedback. Liebe Grüße Martina
Ältere Kommentare zeigen
Peter Tarmann
Sa, 06. April 2024, 08:31
Hallo, wir suchen kurzfristig einen Raum für eine Abend- Veranstaltung am 2. Mai für ca. 70-80 Personen. Ein indischer Swami kommt nach Wien. Wir würden den Raum ab 14:00 Uhr oder Ganztägig mieten. Ist das möglich? Liebe Grüße Peter
Ältere Kommentare zeigen
Alisa Sterz
Do, 05. Oktober 2023, 11:13
Einen wunderschönen guten Morgen liebe Inga, Ich bin auf der Suche nach einem Ort für Weihnachtsfotoshootings ab Anfang November. Können Sie mir bitte sagen, ob ich den Raum für zwei Monate mieten kann? Liebe Grüße Alisa Mein Nummer ist: +4368184228451 Sie können mir jede Zeit anrufen.
Ältere Kommentare zeigen
Niklas Rebel
Di, 15. August 2023, 14:16
Sehr geehrte Frau Stalinsky, Wäre auch eine ganztägige Dauernutzung möglich (Also Mo-Fr von 09:00 Uhr bis 22:00 Uhr) ? Unser Theaterverein sucht aktuell nach Räumen. Wäre aufgrund dieser Nutzungsart und -zeit eventuell ein angepasster Preis möglich? Mit freundlichen Grüßen, Niklas Rebel
Ältere Kommentare zeigen
Kultur Schlinger
Do, 17. August 2023, 11:17
Lieber Herr Rebel, Danke für Ihre Nachricht. Eine langfristige ganzwöchige Dauernutzung ist leider bei uns nicht umsetzbar. Bei einer Dauereinmietung wäre die Raumnutzung 1 mal die Woche, ganztägig möglich. 290 € Monatliche Raumnutzung (1x in der Woche) Liebe Grüße, Inga
Weitere ähnliche Raumteiler (zu allen Raumteilern)
Mehr anzeigen