

Denise Dobida
Amore für Marken. Appetit auf mehr.
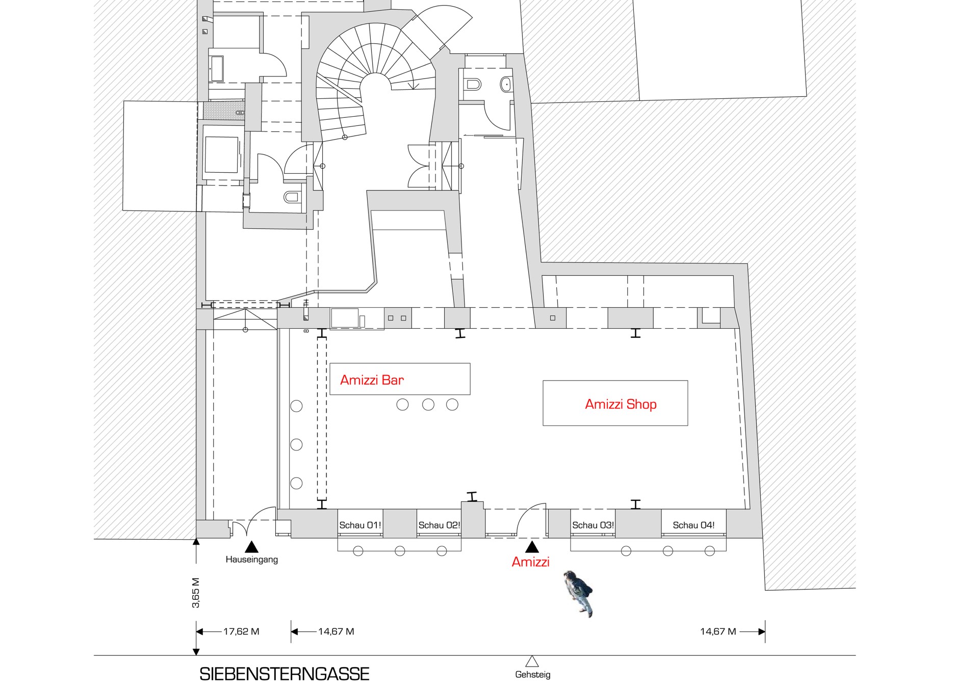
Amizzi ist ein neuer Treffpunkt im 7. Bezirk – auf der einen Seite ein gemütliches Café mit Cappuccino, Prosecco & kleinen Bites, und auf der anderen Seite ein Pop-up Store, in dem kreative Brands und Labels ihre Produkte präsentieren können.
Dafür gibt es zwei Pakete:
Tisch-Paket: ein schöner Tisch für deine Produkte + fix inkludierte Schaufenster-Präsenz
Stangen-Paket: eine Kleiderstange für deine Kollektion + fix inkludierte Schaufenster-Präsenz
Bei beiden Varianten ist dein Platz im Schaufenster garantiert – so bleibt deine Marke auch außerhalb der Öffnungszeiten sichtbar. Natürlich kannst du beide Pakete kombinieren.
Das Praktische: Wir übernehmen den Verkauf für dich. Kassensystem und Verkäufer:innen vor Ort sind im Preis inkludiert. Durch das Café auf der anderen Seite kommt laufend neues Publikum ins Lokal, das bei Kaffee oder Aperitivo auch deine Produkte entdeckt – genau diese Mischung macht Amizzi besonders.
Amizzi ist Bühne, Café und Schaufenster in einem – die ideale Chance für kleine Brands, die ohne großes Risiko sichtbar werden wollen.
Wie bist du zu deinem Thema oder deiner Tätigkeit gekommen?
Wir – zwei Freundinnen mit einer Leidenschaft für schöne Dinge und gutes Essen – haben Amizzi ins Leben gerufen. Unsere Idee: ein Ort, an dem man entspannt Kaffee trinken oder ein Glas Prosecco genießen kann, und gleichzeitig coole Brands entdeckt.
Uns war wichtig, eine Plattform zu schaffen, die leistbar ist und bei der man sich um nichts kümmern muss – deshalb übernehmen wir Verkauf, Kassa und den Kontakt mit den Gästen. Marken sollen bei uns einfach sichtbar werden können, ohne großes Risiko.
Amizzi ist für uns mehr als ein Geschäftslokal – es ist ein Treffpunkt für Kreative, Genießer:innen und alle, die Lust haben, Neues auszuprobieren.
Neuigkeiten & Kommentare




